Stainless Steel Lap Joint Flanges Stockist
ANSI B 16.5, ASME B 16.47 Stainless Steel Lap Joint Flange, ASTM A182 SS LJRF Flanges, SS Lap Joint Raised Face Flanges Stockist & Exporter
At Numax Steels, we are considered as a specialist in manufacturing & exporting a wide range of Stainless Steel Lap Joint Flanges. These SS Flanges are manufactured and designed in a diverse range of sizes and grades like 304, 316, 304L, 316L, 310 etc. Our range includes Steel Raised Face Lap Joint Flanges or LJRF Flanges which are widely used establish the connection of pipes and deliver the maximum level of stability in the functionality of these vital structures.
We provide the leverage to our clients to make the order according to their specifications and requirements. Our offered range of Stainless steel lap joint flanges is used to block the end of a pipe system or valve. Our range finds a wide application in power plant, chemical & food, and drilling & well building industries. Contact us today to request a free quote or send an inquiry!
Stainless Steel 304 Lap Joint Flange, SS 310 Lap Joint Flange, SS UNS S30400/ S31000 Flanges, Stainless Steel Werkstoff Nr. 1.4301 / 1.4401 Pipe Flanges Manufacturer & Supplier in India
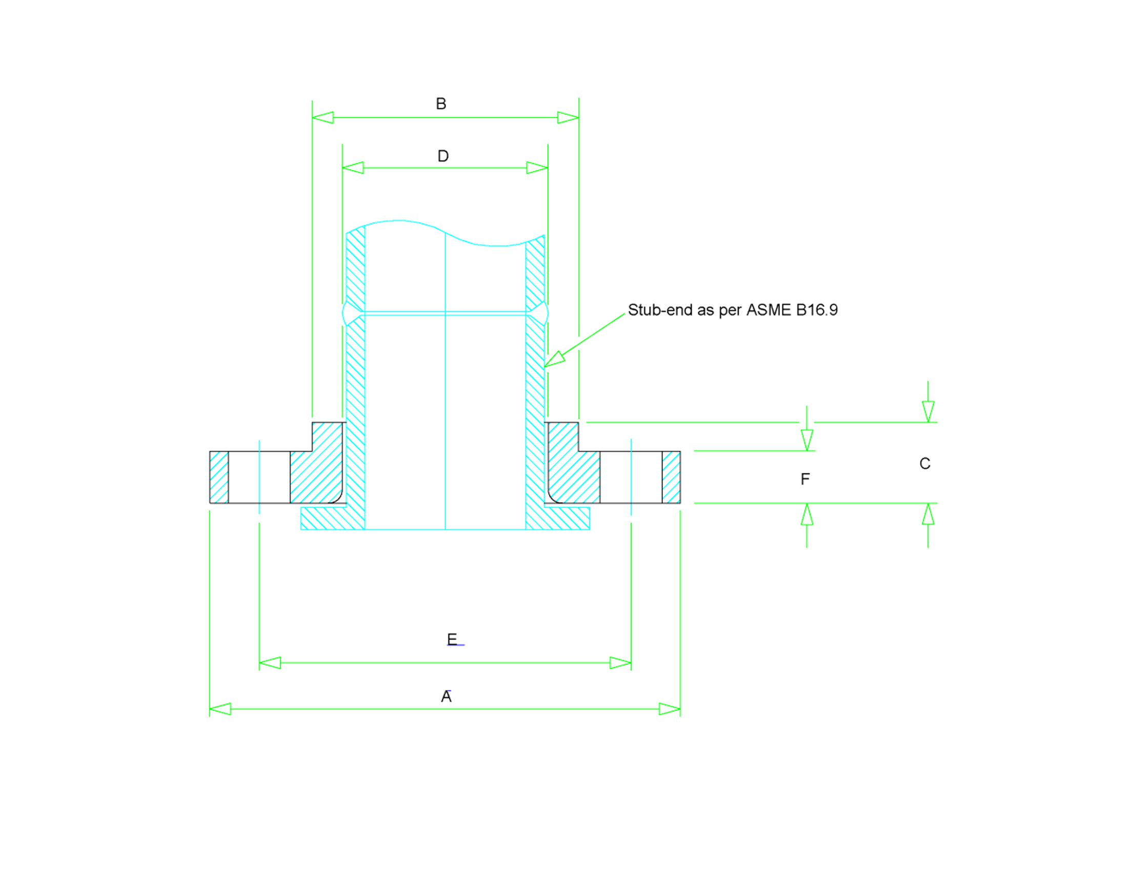
| Stainless Steel Lap Joint Flanges |
ASTM A 182, A 240 F 304, 304L, 304H, 316, 316L, 316Ti, 310, 310S, 321, 321H, 317, 347, 347H, 904L |
| Size in Inch |
Size in mm |
Outer Dia. |
Flange Thick. |
Lapped Thick. |
Lapped ID |
PCD |
Lapped Thick. |
Lapped Radius |
No of Bolts |
Bolt Size UNC |
Machine Bolt Length |
RF Stud Length |
Hole Size |
ISO Stud Size |
Weight in kg |
| |
|
A |
B |
C |
D |
E |
G |
|
|
|
|
|
|
|
|
| 1/2 |
15 |
90 |
30 |
16 |
22.9 |
60.3 |
11.2 |
3 |
4 |
1/2 |
50 |
55 |
5/8 |
M14 |
0.8 |
| 3/4 |
20 |
100 |
38 |
16 |
28.2 |
69.9 |
12.7 |
3 |
4 |
1/2 |
50 |
65 |
5/8 |
M14 |
0.9 |
| 1 |
25 |
110 |
49 |
17 |
34.9 |
79.4 |
14.3 |
3 |
4 |
1/2 |
55 |
65 |
5/8 |
M14 |
0.9 |
| 1 1/4 |
32 |
115 |
59 |
21 |
43.7 |
88.9 |
15.9 |
5 |
4 |
1/2 |
55 |
70 |
5/8 |
M14 |
1.4 |
| 1 1/2 |
40 |
125 |
65 |
22 |
50 |
98.4 |
17.5 |
6 |
4 |
1/2 |
65 |
70 |
5/8 |
M14 |
1.4 |
| 2 |
50 |
150 |
78 |
25 |
62.5 |
120.7 |
19.1 |
8 |
4 |
5/8 |
70 |
85 |
3/4 |
M16 |
2.3 |
| 2 1/2 |
65 |
180 |
90 |
29 |
75.4 |
139.7 |
22.3 |
8 |
4 |
5/8 |
75 |
90 |
3/4 |
M16 |
3.2 |
| 3 |
80 |
190 |
108 |
30 |
91.4 |
152.4 |
23.9 |
10 |
4 |
5/8 |
75 |
90 |
3/4 |
M16 |
3.7 |
| 3 1/2 |
90 |
215 |
122 |
32 |
104.1 |
177.8 |
23.9 |
11 |
8 |
5/8 |
75 |
90 |
3/4 |
M16 |
5 |
| 4 |
100 |
230 |
135 |
33 |
116.8 |
190.5 |
23.9 |
11 |
8 |
5/8 |
75 |
90 |
3/4 |
M16 |
5.9 |
| 5 |
125 |
255 |
164 |
36 |
144.4 |
215.9 |
23.9 |
11 |
8 |
3/4 |
85 |
95 |
7/8 |
M20 |
6.8 |
| 6 |
150 |
280 |
192 |
40 |
171.4 |
241.3 |
25.4 |
13 |
8 |
3/4 |
85 |
100 |
7/8 |
M20 |
8.6 |
| 8 |
200 |
345 |
246 |
44 |
222.2 |
298.5 |
28.6 |
13 |
8 |
3/4 |
90 |
110 |
7/8 |
M20 |
13.7 |
| 10 |
250 |
405 |
305 |
49 |
277.4 |
362 |
30.2 |
13 |
12 |
7/8 |
100 |
115 |
1 |
M24 |
19.5 |
| 12 |
300 |
485 |
365 |
56 |
328.2 |
431.8 |
31.8 |
13 |
12 |
7/8 |
100 |
120 |
1 |
M24 |
29 |
| 14 |
350 |
535 |
400 |
79 |
360.2 |
476.3 |
35 |
13 |
12 |
1 |
115 |
135 |
1 1/8 |
M27 |
41 |
| 16 |
400 |
595 |
457 |
87 |
411.2 |
539.8 |
36.6 |
13 |
16 |
1 |
115 |
135 |
1 1/8 |
M27 |
54 |
| 18 |
450 |
635 |
505 |
97 |
462.3 |
577.9 |
39.7 |
13 |
16 |
1 1/8 |
125 |
145 |
1 1/4 |
M30 |
59 |
| 20 |
500 |
700 |
559 |
103 |
514.4 |
635 |
42.9 |
13 |
20 |
1 1/8 |
140 |
160 |
1 1/4 |
M30 |
75 |
| 24 |
600 |
815 |
663 |
111 |
616 |
749.3 |
47.9 |
13 |
20 |
1 1/4 |
150 |
170 |
1 3/8 |
M33 |
100 |
| Size in Inch |
Size in mm |
Outer Dia. |
Flange Thick. |
Lapped Thick. |
Lapped ID |
PCD |
Lapped Thick. |
Lapped Radius |
No of Bolts |
Bolt Size UNC |
Machine Bolt Length |
RF Stud Length |
Hole Size |
ISO Stud Size |
Weight in kg |
| |
|
A |
B |
C |
D |
E |
G |
|
|
|
|
|
|
|
|
| 1/2 |
15 |
95 |
38 |
22 |
22.9 |
66.7 |
14.3 |
3 |
4 |
1/2 |
55 |
65 |
5/8 |
M14 |
1.2 |
| 3/4 |
20 |
115 |
48 |
25 |
28.2 |
82.6 |
15.9 |
3 |
4 |
5/8 |
65 |
75 |
3/4 |
M16 |
1.4 |
| 1 |
25 |
125 |
54 |
27 |
34.9 |
88.9 |
17.5 |
3 |
4 |
5/8 |
65 |
75 |
3/4 |
M16 |
1.4 |
| 1 1/4 |
32 |
135 |
64 |
27 |
43.7 |
98.4 |
19.1 |
5 |
4 |
5/8 |
70 |
85 |
3/4 |
M16 |
1.8 |
| 1 1/2 |
40 |
155 |
70 |
30 |
50 |
114.3 |
20.7 |
6 |
4 |
3/4 |
75 |
90 |
7/8 |
M20 |
2.7 |
| 2 |
50 |
165 |
84 |
33 |
62.5 |
127 |
22.3 |
8 |
8 |
5/8 |
75 |
90 |
3/4 |
M16 |
3.2 |
| 2 1/2 |
65 |
190 |
100 |
38 |
75.4 |
149.2 |
25.4 |
8 |
8 |
3/4 |
85 |
100 |
7/8 |
M20 |
4.6 |
| 3 |
80 |
210 |
117 |
43 |
91.4 |
168.3 |
28.6 |
10 |
8 |
3/4 |
90 |
110 |
7/8 |
M20 |
5.9 |
| 3 1/2 |
90 |
230 |
133 |
44 |
104.1 |
184.2 |
30.2 |
11 |
8 |
3/4 |
95 |
110 |
7/8 |
M20 |
7.7 |
| 4 |
100 |
255 |
146 |
48 |
116.8 |
200 |
31.8 |
11 |
8 |
3/4 |
95 |
115 |
7/8 |
M20 |
10 |
| 5 |
125 |
280 |
178 |
51 |
144.4 |
235 |
35 |
11 |
8 |
3/4 |
110 |
120 |
7/8 |
M20 |
12.7 |
| 6 |
150 |
320 |
206 |
52 |
171.4 |
269.9 |
36.6 |
13 |
12 |
3/4 |
110 |
120 |
7/8 |
M20 |
17.7 |
| 8 |
200 |
380 |
260 |
62 |
222.2 |
330.2 |
41.3 |
13 |
12 |
7/8 |
120 |
140 |
1 |
M24 |
26 |
| 10 |
250 |
445 |
321 |
95 |
277.4 |
387.4 |
47.7 |
13 |
16 |
1 |
140 |
160 |
1 1/8 |
M27 |
36 |
| 12 |
300 |
520 |
375 |
102 |
328.2 |
450.8 |
50.8 |
13 |
16 |
1 1/8 |
145 |
170 |
1 1/4 |
M30 |
52 |
| 14 |
350 |
585 |
425 |
111 |
360.2 |
514.4 |
54 |
13 |
20 |
1 1/8 |
160 |
180 |
1 1/4 |
M30 |
75 |
| 16 |
400 |
650 |
483 |
121 |
411.2 |
571.5 |
57.2 |
13 |
20 |
1 1/4 |
165 |
190 |
1 3/8 |
M33 |
86 |
| 18 |
450 |
710 |
533 |
130 |
462.3 |
628.6 |
60.4 |
13 |
24 |
1 1/4 |
170 |
195 |
1 3/8 |
M33 |
113 |
| 20 |
500 |
775 |
587 |
140 |
514.4 |
685.8 |
63.5 |
13 |
24 |
1 1/4 |
185 |
205 |
1 3/8 |
M33 |
143 |
| 24 |
600 |
915 |
702 |
153 |
616 |
812.8 |
69.9 |
13 |
24 |
1 1/2 |
205 |
230 |
1 5/8 |
M39 |
216 |
| Size in Inch |
Size in mm |
Outer Dia. |
Flange Thick. |
Lapped Thick. |
Lapped ID |
PCD |
Lapped Thick. |
Lapped Radius |
No of Bolts |
Bolt Size UNC |
RF Stud Length |
Hole Size |
ISO Stud Size |
Weight in kg |
| |
|
A |
B |
C |
D |
E |
G |
|
|
|
|
|
|
|
| 1/2 |
15 |
95 |
38 |
22 |
22.9 |
66.7 |
14.3 |
3 |
4 |
1/2 |
75 |
5/8 |
M14 |
1.3 |
| 3/4 |
20 |
115 |
48 |
25 |
28.2 |
82.6 |
15.9 |
3 |
4 |
5/8 |
90 |
3/4 |
M16 |
1.5 |
| 1 |
25 |
125 |
54 |
27 |
34.9 |
88.9 |
17.5 |
3 |
4 |
5/8 |
90 |
3/4 |
M16 |
1.8 |
| 1 1/4 |
32 |
135 |
64 |
29 |
43.7 |
98.4 |
20.7 |
5 |
4 |
5/8 |
95 |
3/4 |
M16 |
2.3 |
| 1 1/2 |
40 |
155 |
70 |
32 |
50 |
114.3 |
22.3 |
6 |
4 |
3/4 |
110 |
7/8 |
M20 |
3.2 |
| 2 |
50 |
165 |
84 |
37 |
62.5 |
127 |
25.4 |
8 |
8 |
5/8 |
110 |
3/4 |
M16 |
4.1 |
| 2 1/2 |
65 |
190 |
100 |
41 |
75.4 |
149.2 |
28.6 |
8 |
8 |
3/4 |
120 |
7/8 |
M20 |
5.9 |
| 3 |
80 |
210 |
117 |
46 |
91.4 |
168.3 |
31.8 |
10 |
8 |
3/4 |
125 |
7/8 |
M20 |
7.3 |
| 3 1/2 |
90 |
230 |
133 |
49 |
104.1 |
184.2 |
35 |
10 |
8 |
7/8 |
140 |
1 |
M24 |
9.6 |
| 4 |
100 |
255 |
146 |
51 |
116.8 |
200 |
35 |
11 |
8 |
7/8 |
140 |
1 |
M24 |
11.8 |
| 5 |
125 |
280 |
178 |
54 |
144.5 |
235 |
38.1 |
11 |
8 |
7/8 |
145 |
1 |
M24 |
14.1 |
| 6 |
150 |
320 |
206 |
57 |
171.4 |
269.9 |
41.3 |
13 |
12 |
7/8 |
150 |
1 |
M24 |
20 |
| 8 |
200 |
380 |
260 |
68 |
222.2 |
330 |
47.7 |
13 |
12 |
1 |
170 |
1 1/8 |
M27 |
31 |
| 10 |
250 |
445 |
321 |
102 |
277.4 |
387.4 |
54 |
13 |
16 |
1 1/8 |
190 |
1 1/4 |
M30 |
42 |
| 12 |
300 |
520 |
375 |
108 |
328.2 |
450.8 |
57.2 |
13 |
16 |
1 1/4 |
205 |
1 3/8 |
M33 |
59 |
| 14 |
350 |
585 |
425 |
117 |
360.2 |
514.4 |
60.4 |
13 |
20 |
1 1/4 |
210 |
1 3/8 |
M33 |
82 |
| 16 |
400 |
650 |
483 |
127 |
411.2 |
571.5 |
63.5 |
13 |
20 |
1 3/8 |
220 |
1 1/2 |
M36 |
107 |
| 18 |
450 |
710 |
533 |
137 |
462.3 |
628.6 |
66.7 |
13 |
24 |
1 3/8 |
230 |
1 1/2 |
M36 |
130 |
| 20 |
500 |
775 |
587 |
146 |
514.4 |
685.8 |
69.9 |
13 |
24 |
1 1/2 |
240 |
1 3/4 |
M39 |
157 |
| 24 |
600 |
915 |
702 |
159 |
616 |
812.8 |
76.2 |
13 |
24 |
1 3/4 |
265 |
1 7/8 |
M45 |
232 |
| Size in Inch |
Size in mm |
Outer Dia. |
Flange Thick. |
Lapped Thick. |
Lapped ID |
PCD |
Lapped Thick. |
Lapped Radius |
No of Bolts |
Bolt Size UNC |
RF Stud Length |
Hole Size |
ISO Stud Size |
Weight in kg |
| |
|
A |
B |
C |
D |
E |
G |
|
|
|
|
|
|
|
| 1/2 |
15 |
95 |
38 |
22 |
22.9 |
66.7 |
14.3 |
3 |
4 |
1/2 |
75 |
5/8 |
M14 |
1.3 |
| 3/4 |
20 |
115 |
48 |
25 |
28.2 |
82.6 |
15.9 |
3 |
4 |
5/8 |
90 |
3/4 |
M16 |
1.4 |
| 1 |
25 |
125 |
54 |
27 |
34.9 |
88.9 |
17.5 |
3 |
4 |
5/8 |
90 |
3/4 |
M16 |
1.8 |
| 1 1/4 |
32 |
135 |
64 |
29 |
43.7 |
98.4 |
20.7 |
5 |
4 |
5/8 |
95 |
3/4 |
M16 |
2.3 |
| 1 1/2 |
40 |
155 |
70 |
32 |
50 |
114.3 |
22.3 |
6 |
4 |
3/4 |
110 |
7/8 |
M20 |
3.2 |
| 2 |
50 |
165 |
84 |
37 |
62.5 |
127 |
25.4 |
8 |
8 |
5/8 |
110 |
3/4 |
M16 |
4.1 |
| 2 1/2 |
65 |
190 |
100 |
41 |
75.4 |
149.2 |
28.6 |
8 |
8 |
3/4 |
120 |
7/8 |
M20 |
5.9 |
| 3 |
80 |
210 |
117 |
46 |
91.4 |
168.3 |
31.8 |
10 |
8 |
3/4 |
125 |
7/8 |
M20 |
7.3 |
| 3 1/2 |
90 |
230 |
133 |
49 |
104.1 |
184.2 |
35 |
11 |
8 |
7/8 |
140 |
1 |
M24 |
9.6 |
| 4 |
100 |
275 |
152 |
54 |
116.8 |
215.9 |
38.1 |
11 |
8 |
7/8 |
145 |
1 |
M24 |
16.8 |
| 5 |
125 |
330 |
189 |
60 |
144.4 |
266.7 |
44.5 |
11 |
8 |
1 |
165 |
1 1/8 |
M27 |
29 |
| 6 |
150 |
355 |
222 |
67 |
171.4 |
292.1 |
47.7 |
13 |
12 |
1 |
170 |
1 1/8 |
M27 |
36 |
| 8 |
200 |
420 |
273 |
76 |
222.2 |
349.2 |
55.6 |
13 |
12 |
1 1/8 |
190 |
1 1/4 |
M30 |
52 |
| 10 |
250 |
510 |
343 |
111 |
277.4 |
431.8 |
63.5 |
13 |
16 |
1 1/4 |
215 |
1 3/8 |
M33 |
77 |
| 12 |
300 |
560 |
400 |
117 |
328.2 |
489 |
66.7 |
13 |
20 |
1 1/4 |
220 |
1 3/8 |
M33 |
91 |
| 14 |
350 |
605 |
432 |
127 |
360.2 |
527 |
69.9 |
13 |
20 |
1 3/8 |
235 |
1 1/2 |
M36 |
105 |
| 16 |
400 |
685 |
495 |
140 |
411.2 |
603.2 |
76.2 |
13 |
20 |
1 1/2 |
255 |
1 5/8 |
M39 |
150 |
| 18 |
450 |
745 |
546 |
152 |
462.3 |
654 |
82.6 |
13 |
20 |
1 5/8 |
275 |
1 3/4 |
M42 |
182 |
| 20 |
500 |
815 |
610 |
165 |
514.4 |
723.9 |
88.9 |
13 |
24 |
1 5/8 |
285 |
1 3/4 |
M42 |
232 |
| 24 |
600 |
940 |
718 |
184 |
616 |
838.2 |
101.6 |
13 |
24 |
1 7/8 |
330 |
2 |
M48 |
332 |
| Size in Inch |
Size in mm |
Outer Dia. |
Flange Thick. |
Lapped Thick. |
Lapped ID |
PCD |
Lapped Thick. |
Lapped Radius |
No of Bolts |
Bolt Size UNC |
RF Stud Length |
Hole Size |
ISO Stud Size |
Weight in kg |
| |
|
A |
B |
C |
D |
E |
G |
|
|
|
|
|
|
|
| 1/2 |
15 |
120 |
38 |
32 |
22.9 |
82.6 |
22.3 |
3 |
4 |
3/4 |
110 |
7/8 |
M20 |
1.8 |
| 3/4 |
20 |
130 |
44 |
35 |
28.2 |
88.9 |
25.4 |
3 |
4 |
3/4 |
115 |
7/8 |
M20 |
2.3 |
| 1 |
25 |
150 |
52 |
41 |
34.9 |
101.6 |
28.6 |
3 |
4 |
7/8 |
125 |
1 |
M24 |
3.6 |
| 1 1/4 |
32 |
160 |
64 |
41 |
43.7 |
111.1 |
28.6 |
5 |
4 |
7/8 |
125 |
1 |
M24 |
4.1 |
| 1 1/2 |
40 |
180 |
70 |
44 |
50 |
123.8 |
31.8 |
6 |
4 |
1 |
140 |
1 1/8 |
M27 |
5.5 |
| 2 |
50 |
215 |
105 |
57 |
62.5 |
165.1 |
38.1 |
8 |
8 |
7/8 |
145 |
1 |
M24 |
11.5 |
| 2 1/2 |
65 |
245 |
124 |
64 |
75.4 |
190.5 |
41.3 |
8 |
8 |
1 |
160 |
1 1/8 |
M27 |
16.5 |
| 3 |
80 |
240 |
127 |
54 |
91.4 |
190.5 |
38.1 |
10 |
8 |
7/8 |
145 |
1 |
M24 |
12 |
| 4 |
100 |
290 |
159 |
70 |
116.8 |
235 |
44.5 |
11 |
8 |
1 1/8 |
170 |
1 1/4 |
M30 |
24 |
| 5 |
125 |
350 |
190 |
79 |
144.4 |
279.4 |
50.8 |
11 |
8 |
1 1/4 |
190 |
1 3/8 |
M33 |
38 |
| 6 |
150 |
380 |
235 |
86 |
171.4 |
317.5 |
55.6 |
13 |
12 |
1 1/8 |
190 |
1 1/4 |
M30 |
50 |
| 8 |
200 |
470 |
298 |
114 |
222.2 |
393.7 |
63.5 |
13 |
12 |
1 3/8 |
220 |
1 1/2 |
M36 |
78 |
| 10 |
250 |
545 |
368 |
127 |
277.4 |
469.9 |
69.9 |
13 |
16 |
1 3/8 |
235 |
1 1/2 |
M36 |
112 |
| 12 |
300 |
610 |
419 |
143 |
328.2 |
533.4 |
79.4 |
13 |
20 |
1 3/8 |
255 |
1 1/2 |
M36 |
148 |
| 14 |
350 |
640 |
451 |
156 |
360.2 |
558.8 |
85.8 |
13 |
20 |
1 1/2 |
275 |
1 5/8 |
M39 |
182 |
| 16 |
400 |
705 |
508 |
165 |
411.2 |
616 |
88.9 |
13 |
20 |
1 5/8 |
285 |
1 3/4 |
M42 |
193 |
| 18 |
450 |
785 |
565 |
190 |
462.3 |
685.8 |
101.6 |
13 |
20 |
1 7/8 |
325 |
2 |
M48 |
258 |
| 20 |
500 |
855 |
622 |
210 |
514.4 |
749.3 |
108 |
13 |
20 |
2 |
350 |
2 1/8 |
M52 |
317 |
| 24 |
600 |
1040 |
749 |
267 |
616 |
901.7 |
139.7 |
13 |
20 |
2 1/2 |
440 |
2 5/8 |
M64 |
608 |
| Size in Inch |
Size in mm |
Outer Dia. |
Flange Thick. |
Lapped Thick. |
Lapped ID |
PCD |
Lapped Thick. |
Lapped Radius |
No of Bolts |
Bolt Size UNC |
RF Stud Length |
Hole Size |
ISO Stud Size |
Weight in kg |
| |
|
A |
B |
C |
D |
E |
G |
|
|
|
|
|
|
|
| 1/2 |
15 |
120 |
38 |
32 |
22.9 |
82.6 |
22.3 |
3 |
4 |
3/4 |
110 |
7/8 |
M20 |
1.8 |
| 3/4 |
20 |
130 |
44 |
35 |
28.2 |
88.9 |
25.4 |
3 |
4 |
3/4 |
115 |
7/8 |
M20 |
2.3 |
| 1 |
25 |
150 |
52 |
41 |
34.9 |
101.6 |
28.6 |
3 |
4 |
7/8 |
125 |
1 |
M24 |
3.7 |
| 1 1/4 |
32 |
160 |
64 |
41 |
43.7 |
111.1 |
28.6 |
5 |
4 |
7/8 |
125 |
1 |
M24 |
4.1 |
| 1 1/2 |
40 |
180 |
70 |
44 |
50 |
123.8 |
31.8 |
6 |
4 |
1 |
140 |
1 1/8 |
M27 |
5.5 |
| 2 |
50 |
215 |
105 |
57 |
62.5 |
165.1 |
38.1 |
8 |
8 |
7/8 |
145 |
1 |
M24 |
9.8 |
| 2 1/2 |
65 |
245 |
124 |
64 |
75.4 |
190.5 |
41.3 |
8 |
8 |
1 |
160 |
1 1/8 |
M27 |
16.4 |
| 3 |
80 |
265 |
133 |
73 |
91.4 |
203.2 |
47.7 |
10 |
8 |
1 1/8 |
180 |
1 1/4 |
M30 |
21.8 |
| 4 |
100 |
310 |
162 |
90 |
116.8 |
241.3 |
54 |
11 |
8 |
1 1/4 |
195 |
1 3/8 |
M33 |
33 |
| 5 |
125 |
375 |
197 |
105 |
144.4 |
292.1 |
73.1 |
11 |
8 |
1 1/2 |
250 |
1 5/8 |
M39 |
59 |
| 6 |
150 |
395 |
229 |
119 |
171.4 |
317.5 |
82.6 |
13 |
12 |
1 3/8 |
260 |
1 1/2 |
M36 |
75 |
| 8 |
200 |
485 |
292 |
143 |
222.2 |
393.7 |
92.1 |
13 |
12 |
1 5/8 |
290 |
1 3/4 |
M42 |
118 |
| 10 |
250 |
585 |
368 |
178 |
277.4 |
482.6 |
108 |
13 |
12 |
1 7/8 |
335 |
2 |
M48 |
198 |
| 12 |
300 |
675 |
451 |
219 |
328.2 |
571.5 |
123.9 |
13 |
16 |
2 |
375 |
2 1/8 |
M52 |
264 |
| 14 |
350 |
750 |
495 |
241 |
360.2 |
635 |
133.4 |
13 |
16 |
2 1/4 |
405 |
2 3/8 |
M56 |
341 |
| 16 |
400 |
825 |
552 |
260 |
411.2 |
704.8 |
146.1 |
13 |
16 |
2 1/2 |
445 |
2 5/8 |
M64 |
454 |
| 18 |
450 |
915 |
597 |
276 |
462.3 |
774.7 |
162 |
13 |
16 |
2 3/4 |
495 |
2 7/8 |
M72 |
590 |
| 20 |
500 |
985 |
641 |
292 |
514.4 |
831.8 |
177.8 |
13 |
16 |
3 |
540 |
3 1/8 |
M76 |
792 |
| 24 |
600 |
1170 |
762 |
330 |
616 |
990.6 |
203.2 |
13 |
16 |
3 1/2 |
615 |
3 5/8 |
M90 |
1248 |
| Size in Inch |
Size in mm |
Outer Dia. |
Flange Thick. |
Lapped Thick. |
Lapped ID |
PCD |
Lapped Thick. |
Lapped Radius |
No of Bolts |
Bolt Size UNC |
RF Stud Length |
Hole Size |
ISO Stud Size |
Weight in kg |
| |
|
A |
B |
C |
D |
E |
G |
|
|
|
|
|
|
|
| 1/2 |
15 |
135 |
43 |
40 |
22.9 |
88.9 |
30.2 |
3 |
4 |
3/4 |
120 |
7/8 |
M20 |
3.2 |
| 3/4 |
20 |
140 |
51 |
43 |
28.2 |
95.2 |
31.8 |
3 |
4 |
3/4 |
125 |
7/8 |
M20 |
3.7 |
| 1 |
25 |
160 |
57 |
48 |
34.9 |
108 |
35 |
3 |
4 |
7/8 |
140 |
1 |
M24 |
5 |
| 1 1/4 |
32 |
185 |
73 |
52 |
43.7 |
130.2 |
38.1 |
5 |
4 |
1 |
150 |
1 1/8 |
M27 |
7.5 |
| 1 1/2 |
40 |
205 |
79 |
60 |
50 |
146 |
44.5 |
6 |
4 |
1 1/8 |
170 |
1 1/4 |
M30 |
10 |
| 2 |
50 |
235 |
95 |
70 |
62.5 |
171.4 |
50.9 |
8 |
8 |
1 |
180 |
1 1/8 |
M27 |
17.5 |
| 2 1/2 |
65 |
265 |
114 |
79 |
75.4 |
196.8 |
57.2 |
8 |
8 |
1 1/8 |
195 |
1 1/4 |
M30 |
23 |
| 3 |
80 |
305 |
133 |
92 |
91.4 |
228.6 |
66.7 |
10 |
8 |
1 1/4 |
220 |
1 3/8 |
M33 |
37.8 |
| 4 |
100 |
355 |
165 |
108 |
116.8 |
273 |
76.2 |
11 |
8 |
1 1/2 |
255 |
1 5/8 |
M39 |
57 |
| 5 |
125 |
420 |
203 |
130 |
144.4 |
323.8 |
92.1 |
11 |
8 |
1 3/4 |
300 |
1 7/8 |
M45 |
95 |
| 6 |
150 |
485 |
235 |
152 |
171.4 |
368.3 |
108 |
13 |
8 |
2 |
345 |
2 1/8 |
M52 |
148 |
| 8 |
200 |
550 |
305 |
178 |
222.2 |
438.2 |
127 |
13 |
12 |
2 |
380 |
2 1/8 |
M52 |
221 |
| 10 |
250 |
675 |
375 |
229 |
277.4 |
539.8 |
165.1 |
13 |
12 |
2 1/2 |
490 |
2 5/8 |
M64 |
425 |
| 12 |
300 |
760 |
441 |
254 |
328.2 |
619.1 |
184.2 |
13 |
12 |
2 3/4 |
540 |
2 7/8 |
M72 |
500 |
| Stainless Steel Class 150 Lap Joint Flanges |
SS Class 300 Lap Joint Flanges |
| SS Class 400 Lap Joint Flanges |
Stainless Steel Class 600 Lap Joint Flanges |
| Stainless Steel Class 900 Lap Joint Flanges |
SS Class 1500 Lap Joint Flanges |
| SS Plate Lap Joint Flanges |
Stainless Steel Ring Type Joint Lap Joint Flanges |
| Stainless Steel Drawing Lap Joint Flanges |
SS Square Lap Joint Flanges |
| SS Lap Joint Raised Face Flanges |
Stainless Steel LJRF Flanges |
| Stainless Steel Forged Lap Joint Flanges |
SS Lap Joint Flat Face Flanges |
| SS Class 2500 Lap Joint Flanges |
Stainless Steel Lap Joint Flanges |
- Automobile Industries
- Boilers
- Chemical Fertilizers
- Desalination
- Decoratives
- Dairies and Food
- Energy Industries
- Food Industries
- Fertilizers and Plant Equipment
- Fabrication
- Heat Exchangers
- Instrumentation
- Metallurgical Industries
- Oil and Gas Industries
- Pharmaceuticals
- Power Plants
- Railings In Railway Stations
- Sugar Industries
- Space Application
- Pulp and Paper Mills
- Railway Coachings
- Ships
We Export To
Saudi Arabia, Morocco, Cape Town, Freetown, Accra, Lebanon, Dar es Salaam, Hong Kong, Democratic Republic of the Congo, Houston, Mbuji-Mayi, Nairobi, New Zealand, Cairo, Argentina, Angola, Maputo, Singapore, Abidjan, Cyprus, Fez, Israel, Mexico, Douala, Lagos, Australia, Mozambique, Yemen, Yaoundé, Subra al-Haymah, Sudan, Kano, Benin, Germany, Thailand (Bangkok), Addis Ababa, Indonesia, Canada, Tripoli, Bahrain, Antananarivo, Venezuela, Port Harcourt, Soweto, United States, Harare, Sri Lanka, Azerbaijan, Tunisia, South Africa, Trinidad and Tobago, Oman, Egypt, New York, Algeria, Casablanca, Algiers, Mogadishu, Rabat, Vietnam, Ethiopa, Brazil, Chine, Bulawayo, UK, Colombia, Durban, Port Elizabeth, Ouagadougou, Iraq, Kinshasa, Kaduna, Peru, Dubai, Giza, Kuwait, Italy, Iran, London, Zaria, Turkey, Kampala, Cameroon, Bamako, Russia, Jordan, Ghana, Lubumbashi, Pretoria, Kazakhstan, Maiduguri, Malaysia, Johannesburg, Nigeria, Abu Dhabi, Qatar, Conakry, Uganda, Omdurman, Luanda, Alexandria, Ibadan, Khartoum, UAE, Kolwezi, Colombo, Africa, Brazzaville, Dakar.
We Supply To
Freetown, Bulawayo, Lucknow, Nairobi, Ghana, Harare, Jordan, Singapore, Alexandria, Jaipur, Muktsar, Karnataka, Jamalpur, Thailand (Bangkok), Maputo, Delhi, Mbuji-Mayi, Maiduguri, Andhra Pradesh, Zaria, Lebanon, Conakry, Hyderabad, Colombo, Addis Ababa, Brazzaville, Accra, Kolkata, Bhiwadi, Chennai, Omdurman, Rabat, India, Mogadishu, Morocco, Puducherry, Kerala, Casablanca, Kaduna, Benin, Baraut, Angola, Douala, Pune, Bansberia, Bangalore, Tripoli, Kampala, Dakar, New York, Qatar, Kano, Tripura, Algeria, Yemen, Surat, Cyprus, Manipur, Cameroon, Tadepalligudem, Hong Kong, Buxar, Ouagadougou, Oman, Mozambique, Ibadan, Suryapet, Yaoundé, Bamako, Giza, Ethiopa, Port Elizabeth, Kinshasa, Dar es Salaam, Udgir, Lagos, Durban, Soweto, Venezuela, Maharashtra, Ambala, Sadar, Mumbai, Lubumbashi, Cape Town, Uganda, Algiers, Democratic Republic of the Congo, Antananarivo, Subra al-Haymah, Betul, Pretoria, Abu Dhabi, Ahmedabad, Benin, Luanda, Nagapattinam, Miryalaguda, Russia, Abidjan, Port Harcourt, Khartoum, Fez, Johannesburg, Mizoram, Kolwezi, Bundi, Cairo, Ballia.